ما الذي تبحث عنه؟
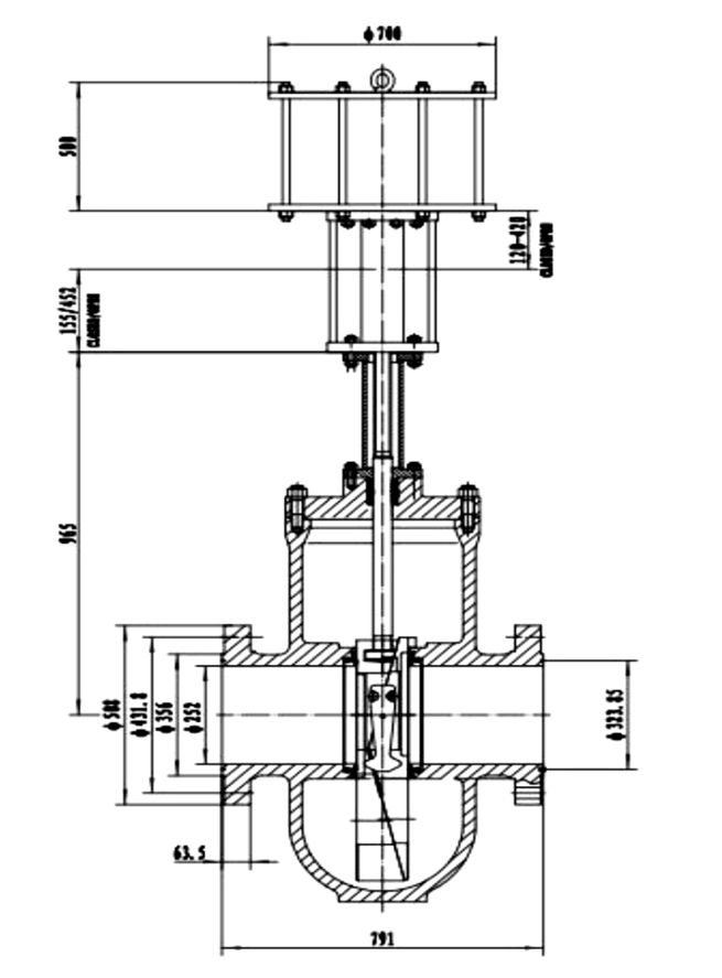
استجابةً لمتطلبات العملاء المحددة، نجحت شركة GEKO Valves & Controls في تصميم وتقديم حل مصمم خصيصًا - مقاس 10 بوصات صمامات التحكم ذات البابين لأنابيب شحن النفط الخام. حظي حل الصمام المُصمم خصيصًا هذا بتقدير واسع وموافقة من عملائنا الكرام.

الهندسة الدقيقة: استفادت شركة GEKO من خبرتها الواسعة في تصميم 10 بوصات صمامات التحكم ذات البابين بدقة، مما يضمن التحكم والأداء الأمثل في سياق شحن النفط الخام.
تصميم الباب المزدوج: يُعزز تصميم الباب المزدوج قدرة الصمام على تنظيم تدفق النفط الخام بكفاءة. تُحسّن هذه الميزة من التحكم والاستجابة لتقلبات عملية الشحن.
اختيار المواد: يتجلى التزام شركة GEKO بالجودة في الاختيار الدقيق للمواد، مما يضمن المتانة والموثوقية في بيئة الشحن النفطي الصعبة.
10 بوصة مخصصة صمامات التحكم ذات البابين خضعت الصمامات لاختبارات وتقييمات دقيقة، وأعرب العميل عن رضاه التام عن الحل. وقد أظهرت الصمامات أداءً استثنائيًا في تنظيم تدفق النفط الخام عبر خط أنابيب الشحن.
تدفق النفط الخام الأمثل: يضمن الحل المصمم خصيصًا تحسين عملية شحن النفط الخام لدى العميل، مع التحكم الدقيق في تدفق النفط الخام، مما يساهم في الكفاءة التشغيلية.
أداء موثوق به: إن التزام شركة GEKO بالهندسة الدقيقة والمواد عالية الجودة يترجم إلى أداء صمام موثوق به ومتسق، مما يقلل من وقت التوقف ومتطلبات الصيانة.
التحكم المعزز: يوفر تصميم الباب المزدوج للصمامات للعميل قدرات تحكم معززة، مما يسمح بإدارة أفضل لعملية شحن النفط الخام.
صمامات وأجهزة تحكم جيكو يؤكد نجاحنا في تقديم حل مخصص لصمامات التحكم ذات البابين مقاس 10 بوصات على التزامنا بتلبية توقعات العملاء وتجاوزها. ويؤكد موافقة عميلنا على فعالية نهجنا المخصص، مما يُبرز GEKO كشريك موثوق به لحلول الصمامات المتخصصة في الظروف الصعبة. مجال شحن النفط الخام. للتواصل: info@geko-union.com